Военный 77 м2 №939

Цена строительства от 3 400 000 ₽* * Стоимость не является окончательной
Заявка на консультацию
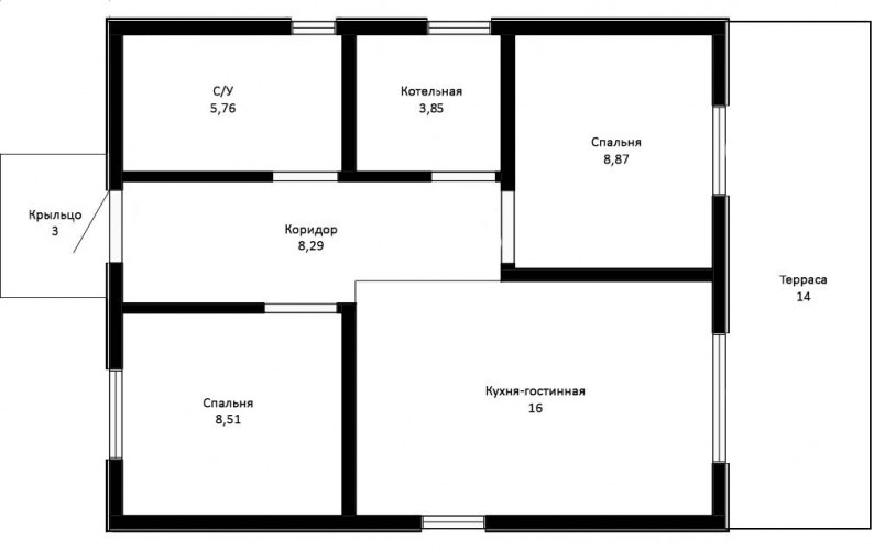
  • Общая площадь 51 м2
  • Материал стен Каркасно-панельные
  • Количество этажей 1
  • Подвал Нет
  • Мансарда без мансарды
  • Гараж Нет
  • Терраса Да
  • Проживание Круглогодичное
  • Количество комнат 3
  • Количество спален 2
  • Количество санузлов 1
  • Вид проекта дом
  • Застройщик МоноЛит
  • Крыша Двускатная
  • Можно купить домокомплект Да
  • Модульный тип строения Нет
Планировки
Описание проекта

Военный 76,5 м² — образец функциональной надёжности. Рациональная планировка исключает излишества: каждый метр работает на удобство и практичность. Это жильё для тех, кто ценит порядок, надёжность и ощущение защищённости.

Комплектации:

ДОМОКОМПЛЕКТ 1 200 000 р.

СТАНДАРТ 3 400 000 р.

КОМФОРТ 4 600 000 р.

КОМФОРТ+ 5 800 000 р.

Вас может заинтересовать
Вас может заинтересовать

Выбор местоположения

Задать вопрос / написать нам

E-mail: domgis@mail.ru

Мы свяжемся с Вами в течение дня.

Тех. поддержка
Предмет обращения:
Тукущая страница

Мы свяжемся с Вами в течение дня.

Уведомление
Предмет обращения:
Тукущая страница
Обратный звонок
Обратный звонок
Выберите ваш город
Пожаловаться

Объявление опубликовано.
Изменения сохранены

Период публикации - бессрочный, при условии подтверждения актуальности каждые 50 дней. Уведомления будут отправляться на Вашу электронную почту.

Выберите причину снятия с публикации

Снятые с публикации объявления не участвуют в поиске и недоступны для подробного просмотра.

Для повторной публикации нажмите «Вернуть в публикацию»