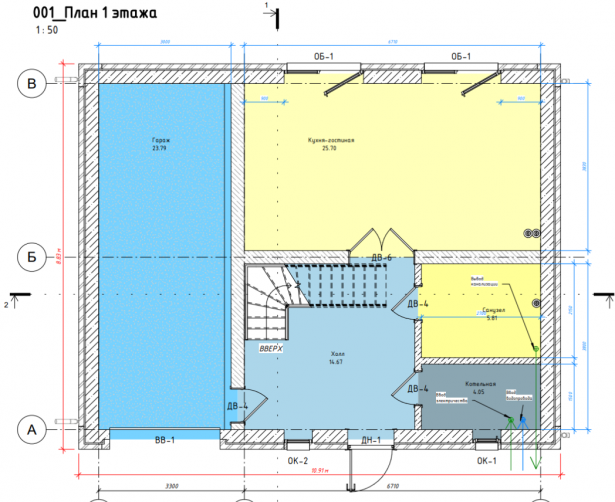
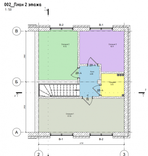
Погрузитесь в атмосферу уюта и надежности с современным двухэтажным домом, построенным из высококачественных материалов. Этот просторный коттедж с гаражом, тремя светлыми спальнями и просторной кухней-гостиной станет идеальным местом, где сочетаются комфорт, функциональность и стиль.
Продуманная планировка двух этажей обеспечивает максимальную эффективность использования пространства: на первом этаже расположена светлая кухня-гостиная — сердце дома для теплых семейных вечеров и встреч с друзьями, а также удобный гараж для вашего автомобиля. Три спальни на втором этаже создают уютное личное пространство для каждого члена семьи.
Этот дом — ваш надежный выбор для комфортной жизни за городом или в пригороде.
Свяжитесь с нами сегодня и сделайте шаг к дому мечты, который прослужит вам многие годы!
Выбор местоположения
Мы свяжемся с Вами в течение дня.