Дом 61 м2 №899

Цена строительства от 5 000 000 ₽* * Стоимость не является окончательной
Заявка на консультацию
  • Общая площадь 61 м2
  • Длина 8.5 м
  • Ширина 10.7 м
  • Материал стен Газобетон/пеноблок
  • Количество этажей 1
  • Подвал Нет
  • Мансарда без мансарды
  • Гараж Нет
  • Терраса Да
  • Проживание Круглогодичное
  • Количество комнат 3
  • Количество спален 2
  • Количество санузлов 1
  • Вид проекта дом
  • Застройщик Инженерные решения
  • Отделка фасада Комбинированная
  • Крыша Двускатная
  • Можно купить домокомплект Нет
  • Модульный тип строения Нет
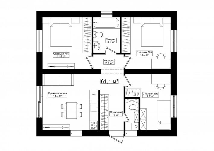
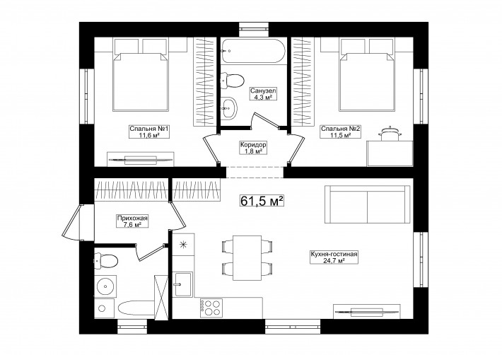
Планировки
Описание проекта

Компактный функциональный одноэтажный дом с оригинальным фасадом и двухскатной кровлей. Имеет 2 планировки две спальни или 3 спальни, кухню гостиную с выходом на террасу, котельную-постирочную, в которой можно разместить второй санузел.

Комплектации

Минимальная: 5 000 000 р.

  • Геология, расчет фундамента
  • Фундамент
  • Отмостка конструктивная
  • Плита пола первого этажа
  • Ввод электричества и воды
  • Разводка канализации
  • Несущие стены газобетон/кирпич
  • Межкомнатные перегородки
  • Межэтажное перекрытие
  • Кровля
  • Окна

Средняя: 5 750 000 р.

  • Всё из минимальной
  • Разводка водоснабжения
  • Система «теплый пол»
  • Стяжка пола
  • Септик
  • Подшивка карнизов кровли

Полная: 6 450 000 р.

  • Всё из средней
  • Входная дверь с терморазрывом
  • Разводка электрики
  • Внутренняя штукатурка
  • Отделка фасада

Данный дом от компании "Инженерные решения" по технологии сип-панелей. Подробнее

Вас может заинтересовать
Вас может заинтересовать

Выбор местоположения

Задать вопрос / написать нам

E-mail: domgis@mail.ru

Мы свяжемся с Вами в течение дня.

Тех. поддержка
Предмет обращения:
Тукущая страница

Мы свяжемся с Вами в течение дня.

Уведомление
Предмет обращения:
Тукущая страница
Обратный звонок
Обратный звонок
Выберите ваш город
Пожаловаться

Объявление опубликовано.
Изменения сохранены

Период публикации - бессрочный, при условии подтверждения актуальности каждые 50 дней. Уведомления будут отправляться на Вашу электронную почту.

Выберите причину снятия с публикации

Снятые с публикации объявления не участвуют в поиске и недоступны для подробного просмотра.

Для повторной публикации нажмите «Вернуть в публикацию»