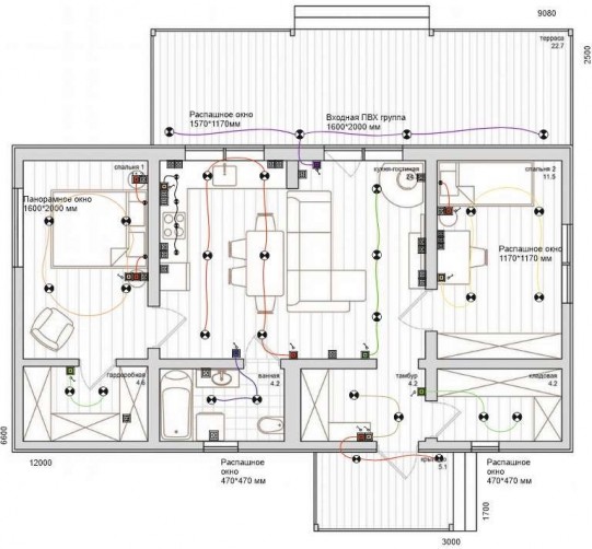
Пространство дома объединяет кухню и гостиную, есть одна большая
спальная комната и две комнаты 7,9 м2.
Подойдет для отдыха или постоянного проживания семьи. Одну комнату можно переделать в кабинет.
ДОПОЛНИТЕЛЬНЫЕ УСЛУГИ ПОДРЯДА по Новосибирску:
• Свайный фундамент
• Доставка и кран
• Септик
• Подвод воды и электричества
Выбор местоположения
Мы свяжемся с Вами в течение дня.